- 
	  View from the parking area 
- 
	  Houses Entrance 
- 
	  House entrance 
- 
	  Entry hall house A 
- 
	  Entry hall house A with staircase 
- 
	  Entry hall house A with staircase 
- 
	  Entry hall house A from kitchen entrance 
- 
	  Living/dining and kitchen entrance from hall 
- 
	  Living/dining and kitchen entrance from hall 
- 
	  Living/Dining Room 
- 
	  Living/Dining room 
- 
	  Kitchen 
- 
	  Family Room 
- 
	  Family Room 
- 
	  Family Room with terrace 
- 
	  Family and living dining from inner terrace 
- 
	  Second floor staircase landing 
- 
	  Bedroom 
- 
	  Bedroom corridor form main bedroom entrance 
- 
	  Bedroom corridor form main bedroom entrance 
- 
	  Main bedroom 
- 
	  Family bathroom 
- 
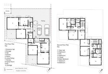
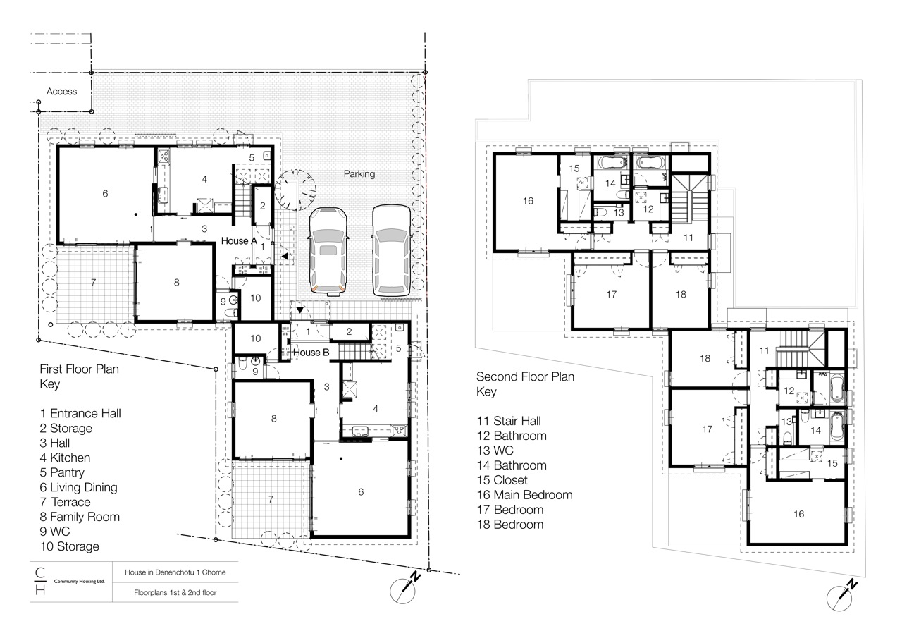
	  Floorplans 
田園調布テラスハウス
大田区田園調布1丁目に平成20年8月に完成した賃貸テラスハウスです。
2戸の左右対称プランおよびその配置は、L字型の敷地を有効に活用し、最大限の自然光を得られることを考慮した結果です。
広い駐車エリアは、車が停められていない時に共有の広場として様々な用途に活用されることを想定しています。
内部空間のデザインは、田園調布という場所柄を考慮し、多様な国籍の家族が快適に暮らせるよう、スタンダードかつフレキシブルなものを目指し、同時に日本式のお風呂や玄関など、日本の優れた生活習慣を積極的に取り入れています。
また、断熱性能を高めると同時に、仕上げ材には人体に害のない自然な素材、原状回復工事の際可能な限りゴミを排出しない素材、そして時の試練に耐えうる素材を選択することによって、居住者の健康および環境への配慮を重視しました
用途: 賃貸住宅
面積:165 m2
設計:有限会社コミュニティー・ハウジング
建設: 伊佐ホームズ株式会社
竣工: 2008/08
Photos: ©Ogawa Shigeo
English
大田区田園調布1丁目に平成20年8月に完成した賃貸テラスハウスです。
2戸の左右対称プランおよびその配置は、L字型の敷地を有効に活用し、最大限の自然光を得られることを考慮した結果です。
広い駐車エリアは、車が停められていない時に共有の広場として様々な用途に活用されることを想定しています。
内部空間のデザインは、田園調布という場所柄を考慮し、多様な国籍の家族が快適に暮らせるよう、スタンダードかつフレキシブルなものを目指し、同時に日本式のお風呂や玄関など、日本の優れた生活習慣を積極的に取り入れています。
また、断熱性能を高めると同時に、仕上げ材には人体に害のない自然な素材、原状回復工事の際可能な限りゴミを排出しない素材、そして時の試練に耐えうる素材を選択することによって、居住者の健康および環境への配慮を重視しました
用途: 賃貸住宅
面積:165 m2
設計:有限会社コミュニティー・ハウジング
建設: 伊佐ホームズ株式会社
竣工: 2008/08
Photos: ©Ogawa Shigeo
English
 
							 
		 
		 
		 
		 
		 
		 
		 
		 
		 
		 
		 
		 
		 
		 
		 
		 
		 
		 
		 
		 
		 
		